QUELQUES CHIFFRES
Mission complète : conception / suivi de chantier
Etude : 1 mois
Chantier : 3 mois
Budget travaux : 80.000 E ttc
ETAT DES LIEUX
Cet appartement, qui est situé au 3ème étage d’un bel immeuble bourgeois de la fin du 19°, donne directement sur la Place Denfert-Rochereau. Il possède trois pièces très lumineuses sur la place : un salon, une salle à manger et une chambre et exposé côté cour de l'immeuble, au sud : une cuisine et une chambre. L’appartement qui est habité par la même personne depuis plus de 50 ans, est dans un état de grande vétusté.
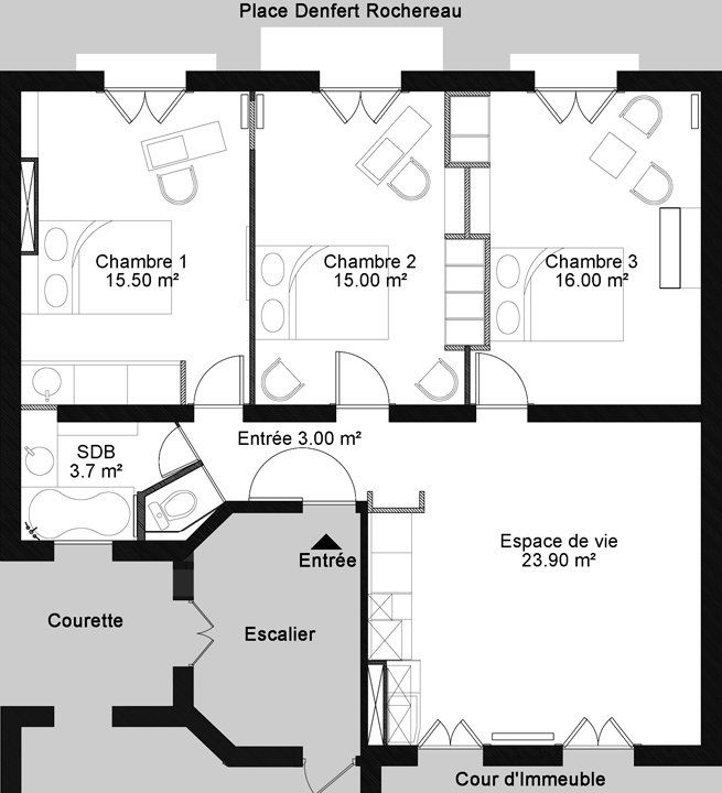
PROPOSITION D'AMÉNAGEMENT
Les nouveaux propriétaires souhaitent entièrement rénover cet appartement avec pour seule contrainte la création de 3 chambres. Le choix est fait de créer les trois chambres dans les trois pièces donnant sur la place Denfert-Rochereau et de créer un grand espace de vie côté cour, en regroupant la chambre, la cuisine et la circulation. Ce plan permet de créer une pièce de vie d'une taille confortable de 24 m² et de rester, si nécessaire, suffisamment modulable, en agrandissement le salon sur la chambre n°3, dans laquelle la cheminée a été volontairement conservée.
RESULTAT
Lors de la rénovation, un soin particulier a été apporté à la conservation des corniches. C'est dans ce but, que l’implantation des placards a été pensée : ils ne vont pas jusqu'au plafond et leur présence a été allégée par un jeu de hauteur.







