Rénovation d'une salle de bain - Montchat, LYON 3°
QUELQUES CHIFFRES
Mission complète : conception / suivi de chantier
Etude : 2 mois
Chantier : 3 mois
Budget travaux : NC
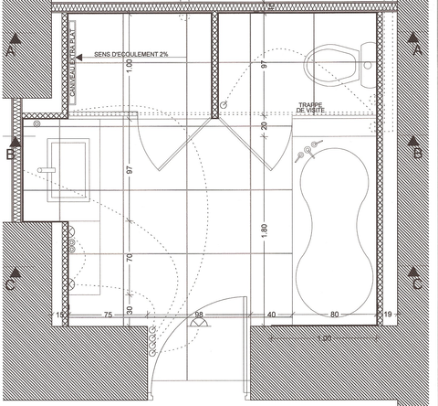
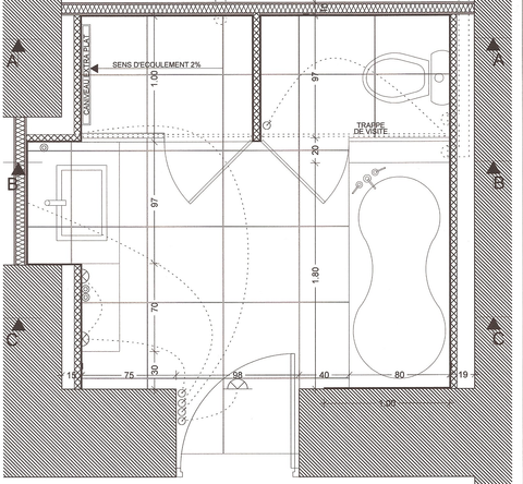
ETAT DES LIEUX
Il s'agit de rénover une salle de bain située dans la cave voûtée d'une maison individuelle 1930 à Montchat, quartier résidentiel bourgeois de Lyon.
La salle de bain, de part ses couleurs et matériaux est désuète. Elle possède une baignoire, une douche, un WC et un plan vasque qu'il faut conserver ou réimplanter différemment.
PROPOSITION
L'aménagement proposé a pour but de mettre en valeur la voûte grâce à un panneau en serrurerie et verre, qui l'épouse et derrière lequel viennent prendre place, la douche et le WC. Le verre est sérigraphié avec des bandes verticales translucides de plus en plus rapprochées afin de créer une intimité de plus en plus grande.
Cela permet aussi de dégager un grand espace centrale où prend place de part et d'autre, la baignoire et un espace de toilette avec un meuble/vasque et une table de maquillage.
RESULTAT






