Transformation d'un appartement en bureaux - rue Vendôme, LYON 6 °
QUELQUES CHIFFRES
Mission partielle : conception
Etude : 2 mois
Chantier : 4 mois
Budget travaux : 70.000 E ttc
ETAT DES LIEUX
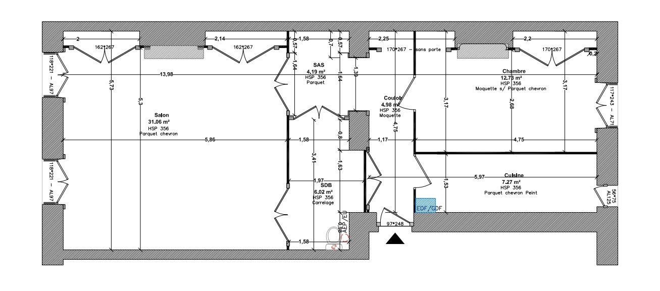
Ce local d'environs 65 m², situé au RDC d’un bel immeuble de la rue Vendôme dans Lyon 6° davait être rénové pour en faire les bureaux d'une Régie Immobilière. Il était constitué d’un couloir desservant une petite cuisine et une pièce sur cours (EST), une grande Salle de Bain, et une grande pièce donnant sur la rue (OUEST). L’ensemble est vétuste (la dernière rénovation date des années 70) mais avait gardé tout le charme des immeubles du début du 20° de ce quartier : hauteur sous plafond, parquet chevron, cheminée et boiserie.
OBJECTIF
L’objectif était de rénover ce local afin d'en faire les bureaux d'une Régie Immobilière, avec :
• Un grand bureau à partager entre 3 à 5 personnes,
• Un bureau fermé pouvant servir ponctuellement pour des réunions OU une salle de réunion qui pourra servir de bureau fermé (intégrant un écran pour projeter des documents lors des réunions),
• Une salle d’archive afin de classer les dossiers des biens en gestion,
• Un espace « lounge » avec un coin kitchenette,
• Un sanitaire.
Il était demandé d'apporter un soin particulier à :
• L'acoustique des bureaux : possibilité de créer un plafond acoustique suspendu avec bandeau LED pour mettre en valeur les corniches,
• La fonctionnalité, notamment pour le classement des documents,
• La mise en valeur des éléments anciens tels que corniches, stylobat, cheminée, parquet par la création de lignes contemporaines.
PROJET
Le projet avait pour but de créer un ensemble fonctionnel et élégant. L'ensemble des éléments anciens ont été conservés et mis en valeur avec un mobilier sur mesure. C'est surtout la partie central de l'appartement qui a été transformé pour créer une zone technique avec un sanitaire, une kitchenette et un sas d'accueil entre les différents espaces. Un soin particulier a été apporté à l'éclairage et à l'acoustique avec la création de faux plafonds technique et acoustique.
Pour les revêtements muraux et tissus, nous avons collaboré avec la Maison Martin Morel. Ils ont particulièrement bien réussi le challenge de créer un rideau de 9 ml et 35 kg, dont le motif "Lotus" a été imprimé sur un velour et fixé sur une tringle courbée, sur mesure. La Maison Martin Morel a également créée les banquettes et coussins pour habiller les deux grandes niches créées dans les anciens placards.
RESULTAT
